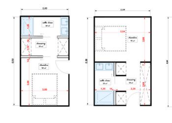
Quelle superficie pour suite parentale ?
La loi française autour du logement impose une taille minimale pour chaque pièce de la maison. Depuis 2002, il est stipulé qu'une habitation compte une chambre parentale si la pièce en question possède une superficie minimale de 12 m² pour une hauteur sous plafond d'au moins 2 m. Ensuite, Pourquoi ...






